Case4 2段ベッド
¥1
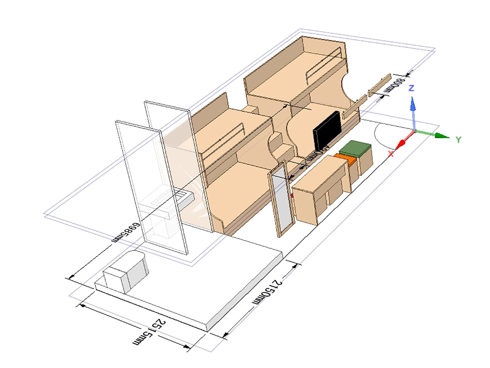
提案内容は細長いお部屋を有効活用し最大4名分しっかりと空間を確保。そして寛げるお部屋づくり。
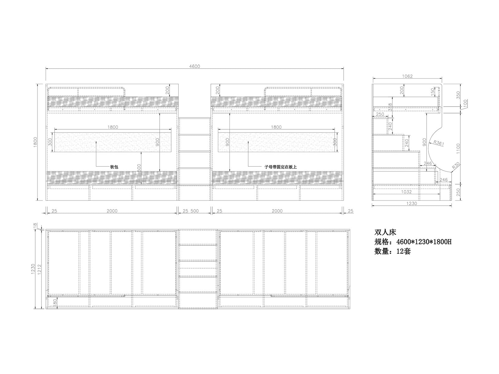
一人一人のプライベート感を保ちながらもコミュニケーションが取りやすいように腰掛けスペースや階段スペースも寛ぎの場として活用。製作時に清掃ベッドメイクする現場側の意見も取り入れて下段はスプリングマットレス・上段は布団タイプを取り入れました。
提案内容は細長いお部屋を有効活用し最大4名分しっかりと空間を確保。そして寛げるお部屋づくり。
一人一人のプライベート感を保ちながらもコミュニケーションが取りやすいように腰掛けスペースや階段スペースも寛ぎの場として活用。製作時に清掃ベッドメイクする現場側の意見も取り入れて下段はスプリングマットレス・上段は布団タイプを取り入れました。